在线咨询
预约设计
扫一扫
返回顶部
全部家装公装
//////////////////////////////////////////////////
全部现代简约田园欧式中式法式混搭美式乡村其他
全部40平以下41-60平61-80平80平以上
全部普通住宅跃层公寓别墅其他
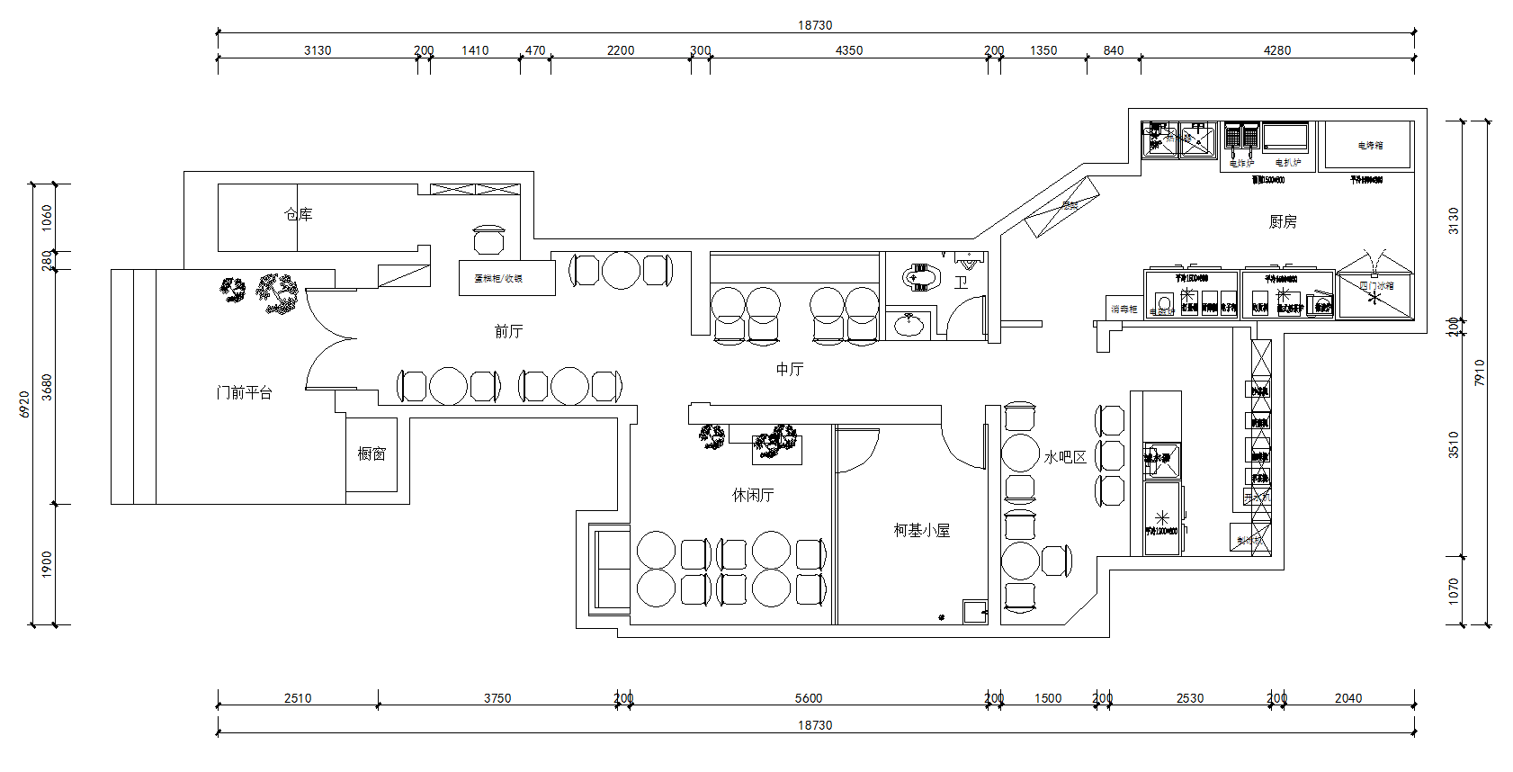
公装案例 建筑面积80㎡
所属风格
所属小区
公装案例
更多案例
最新优惠
设计师
更多案例预约设计
高裕鑫 1